OSPEDALI E CENTRI SANITARI

Casa Di Riposo Castel Nuovo Don Bosco
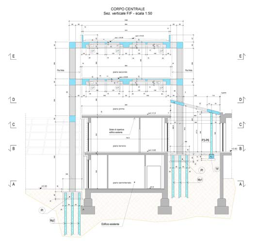
Ristrutturazione ed ampliamento della Casa di Soggiorno per Anziani San Giuseppe di Castelnuovo Don Bosco (AT) – 2° Lotto – Corpo A, Corpo B, Corpo C.
Servizio svolto: Progetto preliminare, definitivo, esecutivo e Coordinamento sicurezza progettazione in raggruppamento con R.P.A. capogruppo.
Ruoli specifici: Ing. Riccardo Renacco – Coordinatore della sicurezza
Ing. Paolo Di Donna – Progettista
Committente: Casa di Soggiorno per Anziani “San Giuseppe”
Anno: 2011 – 2013
Importo lavori:  € 2.553.924,08 (di cui € 1.276.962,04 di competenza Teknema Progetti srl)
Classi e categorie di riferimento: Ic, Ig, IIIb, IIIc (ID opere: E08, S03, IA02, IA04)