OSPEDALI E CENTRI SANITARI
Poliambulatorio Alpignano: realizzazione del nuovo poliambulatorio con accorpamento di tutte le attività sanitarie esistenti Via Pietre n.29 – Rivoli (TO).
Servizio svolto: Progetto Definitivo ed Esecutivo, Coordinamento per la Sicurezza in fase di progettazione in raggruppamento con R.P.A. s.r.l., Ing, Marco SEGHETTA
Ruoli specifici: Ing. Riccardo Renacco – Progettista architettonico e coordinatore per la sicurezza
Ing. Paolo Di Donna – Progettista opere strutturali
Committente: Azienda Sanitaria Locale TO3 di Collegno
Anno: 2010
Importo lavori: € 2.525.800,00 (di cui € 1.304.025,00 di opere edili e € 320.275,00 di opere strutturali)
Classi e categorie di riferimento: Ic, Ig, IIIb, IIIc (ID opere: E10, S03, IA01,IA02, IA04)
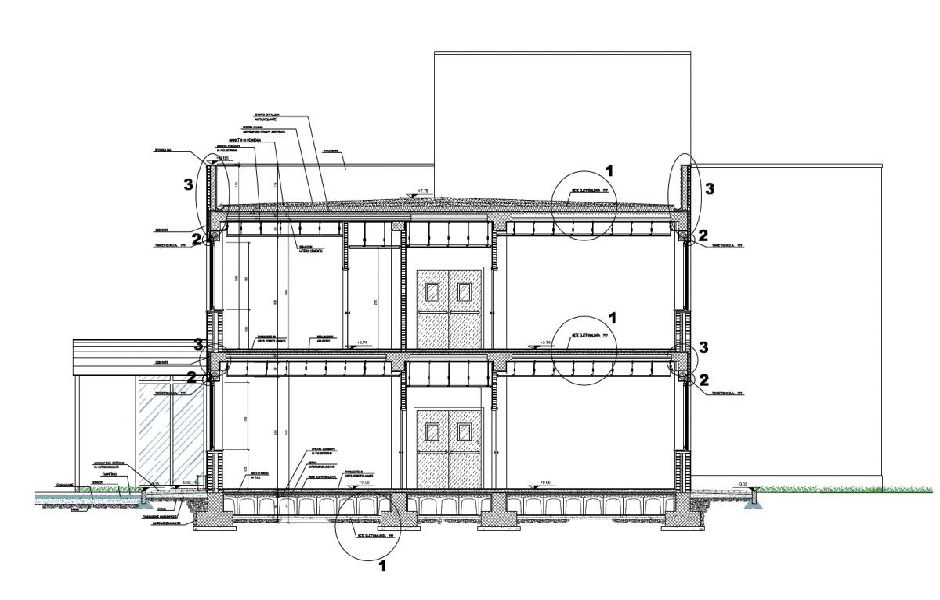
Descrizione lavori: Si tratta della realizzazione del nuovo poliambulatorio con accorpamento di tutte le attività sanitarie esistenti in Alpignano (TO). presso l’ex scuola materna “Borrello”; è un edificio a tre piani fuori terra a due corpi sfalsati a pianta rettangolare, di lunghezza totale 55,7 mt e larghezza del corpo principale pari a 13,60 mt. La struttura portante del manufatto è di tipo tradizionale in c.a.o. e latero-cemento, con fondazioni costituite da travi continue in c.a.o. disposte lungo tutto il perimetro del fabbricato ed alla base dei setti interni e plinti isolati in c.a.o. a base quadrata di fondazione dei pilastri interni. Sono previsti due blocchi ascensori e due scale per i collegamenti verticali interni.
